Bodegas Y Naves Industriales En Renta En Apodaca Technology Park, Apodaca, Nuevo León
ID 119796
Tecnology Park Aeropuerto Apodaca
   $ 300,960 MXN

Colonia Apodaca Technology Park
Apodaca, Nuevo León


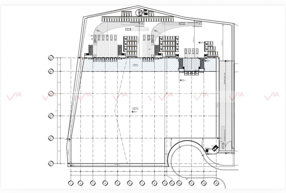
Bodega Industrial en inmejorable ubicación en Pesquería en Parque Industrial AAA a 5 min. del Aeropuerto Internacional de Monterrey con todos los servicios y seguridad las 24 hrs, m2 rentables divisibles desde 2,200 M2 hasta 14,540 m2. Precio en US T.C. del día de la Operación: $7.20 USD x M2 + IVA

Características:
Espesor piso: piso concreto pulido 15 cm de espesor en bodega mr-42 para 8 ton de carga reforzado con fibra metálica y polipropileno. piso exterior de concreto mr38 con acabado rayado con espesor de 15.24 cm reforzado.
Altura: altura libre a la rodilla del marco en el punto más bajo de la estructura de 10 m. en parte baja máxima 13 m.
Estructura: metálica a base de columnas, marcos de 3 placas, polimería a base de monten con claros de 15.50 x 12.20 altura promedio bajo trabe 1.20 m
Andenes: 13 / Rampas: 5
Puerta: seccional manual 8 x 10 abatimiento tipo vertical lift.
Cortina: enrorrable manual (ancho 3.05 x altura 4.00 m), acceso peatonal y rampas por bodega.
Patios: patio de maniobra interior y andenes con piso de concreto
Cajones: 104 cajones estacionamiento
Capacidad eléctrica: transformador de 500 KVA con tensión 440 volts.
capacidad agua: almacenamiento de agua potable y red contra incendio en tanque columbia con capacidad 120 m3.

1 Recamaras
0 Baños completos
0 Medios baños
1 Plantas
15 Estacionamientos
Terreno 2200 m2
Construcción: 2200 m2
  Seguridad
  Luz
  Agua
CONTACTA AL ASESOR

Cynthia Alejandra Ruiz Fernandez


(81) 2893-3383

ENVÍA UN MENSAJE AL ASESOR



  
 
¡Llamar! Mensaje