Bodegas Y Naves Industriales En Venta En México, Tampico, Tamaulipas
ID 118603
Tampico Tamaulipas
   $ 10,200,000 MXN

Colonia México
Tampico, Tamaulipas


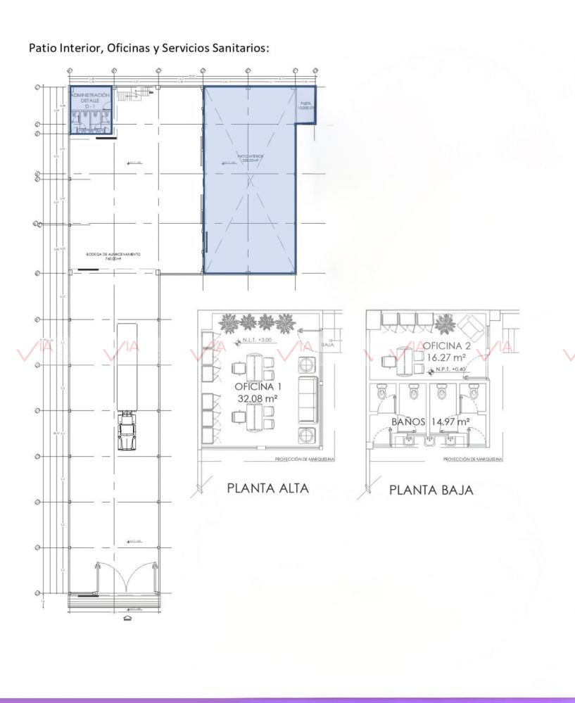
Bodega Tampico es una amplia propiedad de 1136m2 de terreno con 760 metros de frente y 255 metros de fondo, ideal para uso industrial. Cuenta con una construcción de 1208 metros distribuidos en una sola planta, con 4 medios baños para mayor comodidad. La estructura principal es de armaduras y estructura metálica, con ejes transversales y longitudinales cada 5 metros, lo que garantiza su solidez y durabilidad. Además, cuenta con 7 lámparas tipo UFO de 100 watts para un excelente alumbrado. ¡No pierdas la oportunidad de adquirir esta propiedad única!

0 Recamaras
0 Baños completos
4 Medios baños
1 Plantas
0 Estacionamientos
Terreno 1136 m2
Construcción: 1208 m2
  Luz
  Agua
  Bodega
CONTACTA AL ASESOR

América Salazar


(86) 8169-4147

ENVÍA UN MENSAJE AL ASESOR



  
 
¡Llamar! Mensaje