Bodegas Y Naves Industriales En Renta En La Fama, Santa Catarina, Nuevo León
ID 118463
Santa Catarina
   $ 1,050,000 MXN

Colonia La Fama
Santa Catarina, Nuevo León


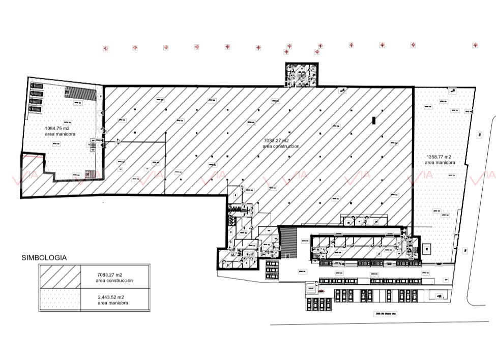
Nave en renta en Zona Santa Catarina cercana a San Pedro Garza García N.L. ideal para centro de distribución, paquetería o logística cuenta con 8,763m2 de terreno con 7,083m2 de bodega amplias oficinas con baños y comedor para colaboradores subestación de 300 KVA y contratado 140 KVA
Espacio para estacionar 30 autos y amplia área de maniobra, acceso a tráiler.

0 Recamaras
0 Baños completos
0 Medios baños
1 Plantas
30 Estacionamientos
Terreno 8763 m2
Construcción: 7083 m2
  Luz
  Agua
CONTACTA AL ASESOR

Martha Guadalupe García Adame


(81) 1037-1329

ENVÍA UN MENSAJE AL ASESOR



  
 
¡Llamar! Mensaje